Praha
Připravuji

Moduly:
Šatov nádraží

Vozy železniční:
Parní vozy.
Osobní vozy .

Nekolejová vozidla:
Nákladní auta

Další:
Má dílna a nářadí.

Menu
open all | close all

no images were found

Spolupracuji

Lepty
Vlastimil Lepieš
lepies@volny.cz
____________________________________________
Laser budov
Vadus
___________________________________________

Archiv
Duben 2010
Po Út St Čt So Ne
 1234
567891011
12131415161718
19202122232425
2627282930  

16 dubna, 2010

Zákupy 2009

Pátek, 16 dubna, 2010

Provozní setkaní Zákupy 2009 od 19.3.-22.3.
Máte možnost se podívat jak to vypadalo na provozním setkaní v  Zákupech.
Prezentace sekcí TT a N-scale najdete zde.
Send to Kindle

Komorní Lhotka 2008

Pátek, 16 dubna, 2010

Členové Wunderland týmu na setkání modulové železnice sekce H0 v Komorní Lhotce 25.10.2008 .

Foto sekce H0:
Send to Kindle

Kostra modulu

Pátek, 16 dubna, 2010

 

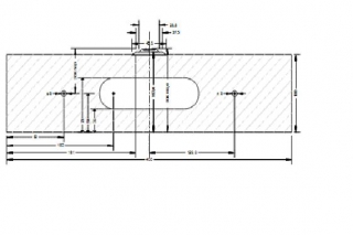
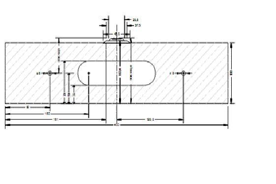
Pro stavbu modulu je potřeba mít rozhraní Fremo, která slouží ke spojování jednotlivých modulů. Pak jsem si nechal nařezat několik dílů, které budou sloužit jako výztuhy modulu. Jako materiál jsem použil bukové překližky o síle 10mm. Překližku mi nařezali ve firmě http://www.jafholz.cz/1257.0.html#c2248. Z těchto dílů bude sestaven modul. K sestavení jsem použil lepidlo na parkety a pak šrouby. Do vnitřních výztuh budou vyfrézovány průchody na propojovací kabely. Do čel modulů jsou podle Frema vyvrtány otvory o průměru 12mm. Slouží ke spojení modulů k sobě pomocí 8mm šroubů.

 Fremo rozhraní:

Sestavení modulu:

 

Jednotlivé díly modulu

Díly před vrtané a  připravenék sestavení

Nalepené výstuhy bočnic

První sestavený modul

Oba sestavené moduly

Čela s Fremo rozhraní

Čela bez rozhraní

Pod koleje se nalepí korek.Na ten pak bude nalepena kolej. Jako kolejivo se používá Peco Code 55 s napodobeninou dřevěných pražců. Kolej je opatřena dvěma páry napájecích drátů.Ty jsou na koncích opatřeny banánky na jedné straně a zdířkou na straně druhé viz. elektrické rozhraní. Další napájecí kabely jsou jako záloha. Vše je napojeno pod lustr svorkou. Na každou stranu modulu, kde je Fremo rozhraní se používá přechodová foliáž a tak se docílí zajímavého přechodu mezi jednotlivými moduly.

 Elektrické rozhraní:

Send to Kindle
Ma ikona
Motto

Fotografie řekne víc než mnoho slov.

Rozdíl mezi dítětem a mužem je v ceně hraček.

Ve zvuku vlaku je něco romantického, nostalgického a plné naděje.

Akce 2021
QR kód – stránek
qrcode